
Unelmakoti odottaa Vaajakosken Kotimäessä
– Tasokasta paritaloasumista 2025
Haaveiletko uudesta, tasokkaasta kodista rauhallisella ja viihtyisällä alueella? Vaajakosken Kotimäkeen valmistuu alkuvuonna 2025 upeat paritalokodit, jotka tarjoavat modernia asumista laadukkailla materiaaleilla ja upeilla yksityiskohdilla. Tule tutustumaan tulevaan unelmakotiisi!
Ylellistä tilaa ja harkittuja yksityiskohtia
Nämä kodit on suunniteltu tarjoamaan asukkailleen maksimaalista viihtyvyyttä ja toimivuutta:
Hulppea lasitettu terassi (33 m²)
Täydellinen paikka rentoutumiseen, illanviettoihin ja jopa grillijuhlien järjestämiseen ympäri vuoden.
Tyylikäs kylpyhuone
ja rentouttava sauna
Kaksi suihkua ja WC tuovat sujuvuutta arkeen. Lasiseinäinen sauna pilarikiukaalla kutsuu rentoutumaan.
Avarat sisätilat
ja näkymät
Kolmen metrin huonekorkeus luo avaran ja ilmavan tunnelman. Korkeasta sijainnista avautuu metsäiset näkymät etelän suuntaan.
Avoin keittiö-olohuone
Keittiö, ruokailutila ja olohuone muodostavat yhtenäisen, avaran tilan, joka on täydellinen perheen yhteisiin hetkiin. Täysin integroidut kodinkoneet ja saareke kierrättävällä liesituulettimella viimeistelevät keittiön.
Käytännöllinen kodinhoitohuone
Oma uloskäynti terassille helpottaa arjen askareita.
Laadukkaat materiaalit
Lämpimät puukuviot, mustat ikkunat ja yksityiskohdat, suuret laatat kylpyhuoneessa – kaikki on suunniteltu luomaan tyylikäs ja harmoninen kokonaisuus.




















































Modernit ja toimivat kodit upeilla terasseilla - katso kuvat!
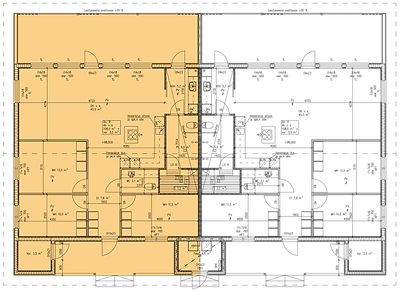
Talon asunnot ovat identtisiä, tarjoten jokaiselle asukkaalle saman laadukkaan ja käytännöllisen pohjaratkaisun. Kumpikin asunto sisältää kolme makuuhuonetta, avaran olohuone-keittiön, kodinhoitohuoneen, saunan sekä lämpimän varaston.
Erityistä asumismukavuutta tuovat suuret lasitetut terassit, jotka on rakennettu samalle betonilaatalle ja katon alle kuin asuintilat, tarjoten suojaisan ja viihtyisän oleskelutilan ympäri vuoden. Sisäänkäynnin vierestä löytyy oma lämmin varasto, ja asuntojen välissä on yhteinen tekninen tila.
Tutustu tarkemmin ja katso kuvat galleriasta!
Energiatehokasta ja modernia tekniikkaa
-
Huoneistokohtainen koneellinen ilmanvaihto lämmöntalteenotolla.
-
Vesikiertoinen lattialämmitys maalämmöllä ja modernilla invertteripumpulla.
-
Edulliset asumiskustannukset ja ympäristöystävällinen lämmitysratkaisu.
Nämä kolmen makuuhuoneen paritalokodit sijaitsevat arvostetulla Kotimäen omakotitaloalueella, jossa suuret puut luovat idyllisen tunnelman. Korkealta paikalta avautuvat upeat metsäiset näkymät etelään. Sijainti on ihanteellinen:
400 m
Moottoritien liittymä vain 400 metrin päässä – sujuvat yhteydet joka suuntaan.
600 m
Jyskän kouluun vain 600 metriä – turvallinen ja lyhyt koulumatka lapsille.
10 min.
Lähikauppa 400 metrin etäisyydellä – arjen ostokset helposti.





